KONZEPT
AUSREICHEND PLATZ FÜR EINE HÄNGEMATTE, DEN TERASSENTISCH ODER EINE SONNENLIEGE
SILVA liegt – gleich einer Eidechse in der Sonne – als Solitär dem Hang folgend in nord--südlicher Ausrichtung. Der länglich akzentuierte, skulpturale Baukörper spielt bewusst mit der Topografie des Grundstückes. Die Hanglage ermöglicht die Verteilung der Gartenebenen auf drei Geschosse. Die Dynamik dieser „Höhensprünge“ setzt sich dann in der Fassade fort bis zu den Penthäusern.
Jede Wohnung verfügt über einen praktisch geschnittenen Grundriss. Während die Appartments im Parterre über eigene Terrassen und vorgelagerte Gärten verfügen, bieten die oberen Geschosse sonnige Westbalkone zum Relaxen an.
SILVA lädt ein, gerade an sonnigen Tagen, mit seinen großzügigen Terrassenflächen den Wohnraum nach draußen um einiges zu erweitern. Gelegenheit zum Sonnen, Faulenzen oder gemütlichen Beisammensein mit Freunden.


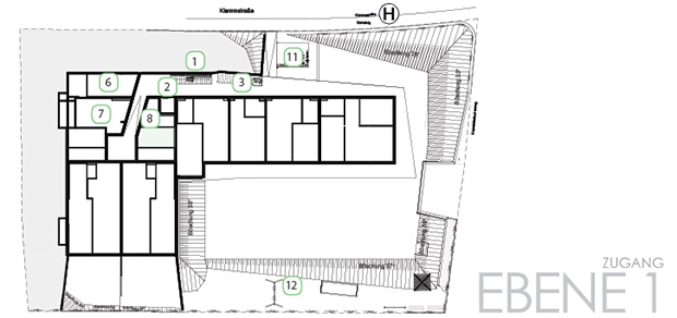
1 Erschliessung / 2 Lift / 3 Postverteiler / 4 Lager (Privat) / 5 Technikraum / 6 Müllentsorgung / 7 Fahrradraum / 8 Kinderwagenraum / 9 Besucherparkplatz / 10 Einspurige KFZ / 11 Fahrradabstellbereich / 12 Spielplatz
Eingangsbereich
Wir sehen es als unsere Pflicht, Wohnkonzepte zu entwickeln, die sowohl auf die ökologischen als auch die ökonomischen Herausforderungen unserer Zeit eine vernünftige Antwort bieten. Deshalb sind wir von umfeld stets bestrebt, die Vorteile eines Einfamilienhauses mit denen einer Wohnanlage zu kombinieren. Konkret bedeutet dies, dass jede Wohneinheit genügend Spielraum für individuelle Gestaltungswünsche im Innen- sowie im Außenraum bietet und die Hausgemeinschaft gleichzeitig einen positven Effekt für den Einzelnen mit sich bringt. Gegenüber einer Einzelnutzung ermöglicht die Gemeinschaftsnutzung merkliche Ersparnisse bei der ansonsten kostenspieligen und platzaufwendigen Infrastruktur. Durch die zentrale Warmwasseraufbereitung & Heizung, die gemeinschaftliche Nutzung der Tiefgaragenebene und der Erschließung, kann dieser wesentliche Kostenfaktor aufgeteilt werden und unsere Resourcen werden effizienter eingesetzt.

